Suzhou Outuo Lifting Technology Co., Ltd
歡迎來廠參觀,免費攜帶物料試機,專車接送!
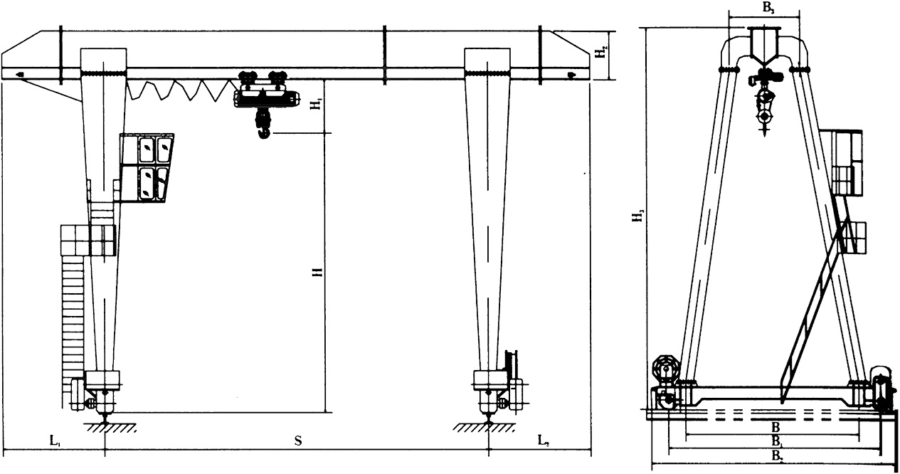
產品類別:門式起重機
產品說明: MH型3~20噸電動葫蘆門式起重機(箱型式) MHType3~20tElectricHoistGantryCran
PRODUCT INTRODUCTION

MH型3~20噸電動葫蘆門式起重機(箱型式)
MHType3~20tElectricHoistGantryCrane(Boxtype)
簡介ABriefIntroduction
MH型電動葫蘆門式起重機與CDMD等型號的電動葫蘆配套使用,是一種有軌運行的中小型起重機,其適用起重量3~20噸,適用跨度12~30米,工作環境-20℃~+40℃內。
本產品為一般用途起重機,多用于露天場所及倉庫的裝卸或抓取物料,本產品有地面操縱和室內操縱兩種型式。
MHModelElectricHoistGirderGantryCraneisusedtogetherwithCDMDModelelectrichoists.Itisatracktravellingsmallandmedium-sizedcrane.ItsproperLiftingweightis3to20tons.Properspanis12to30meters,itsproperworkingtemperatureis-20℃to40℃.
Thisproductisaregularcranewidelyusedatopengroundandwarehousestolqad,unloadorgrabmaterials.Ithastwocontrollingmethods,namelyground,controllingandroomcontrolling.
PRODUCT ADVANTAGES
專業的研發技術人員
研究產品種類多種多樣
產品可長時間穩定工作
擁有完善的售后服務體系
NEWS INTRODUCTION
MESSAGE